APARTAMENTO ARES
O Apartamento Ares utiliza uma divisória orgânica central para organizar e integrar os ambientes sociais com funcionalidade, leveza e design personalizado.
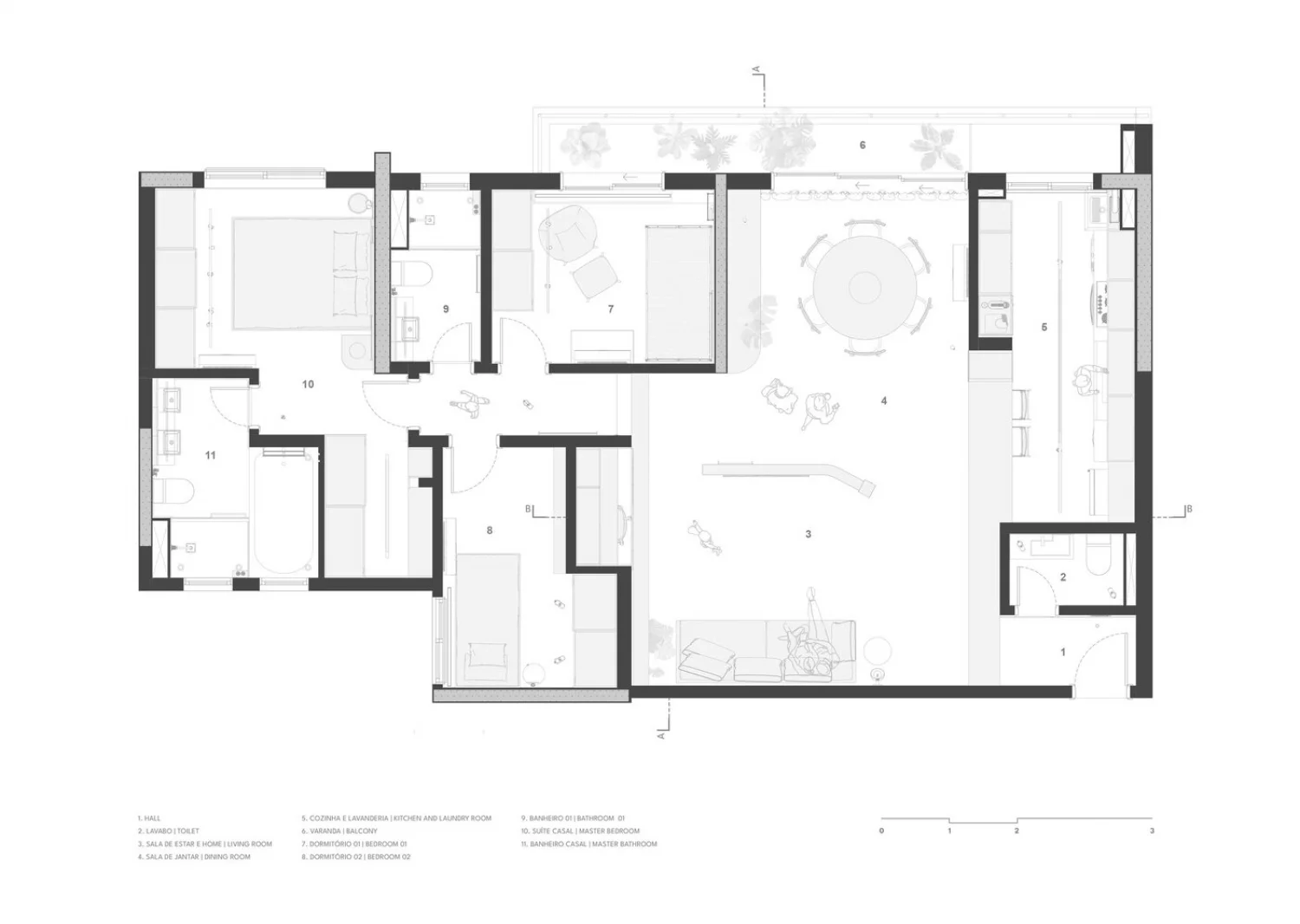
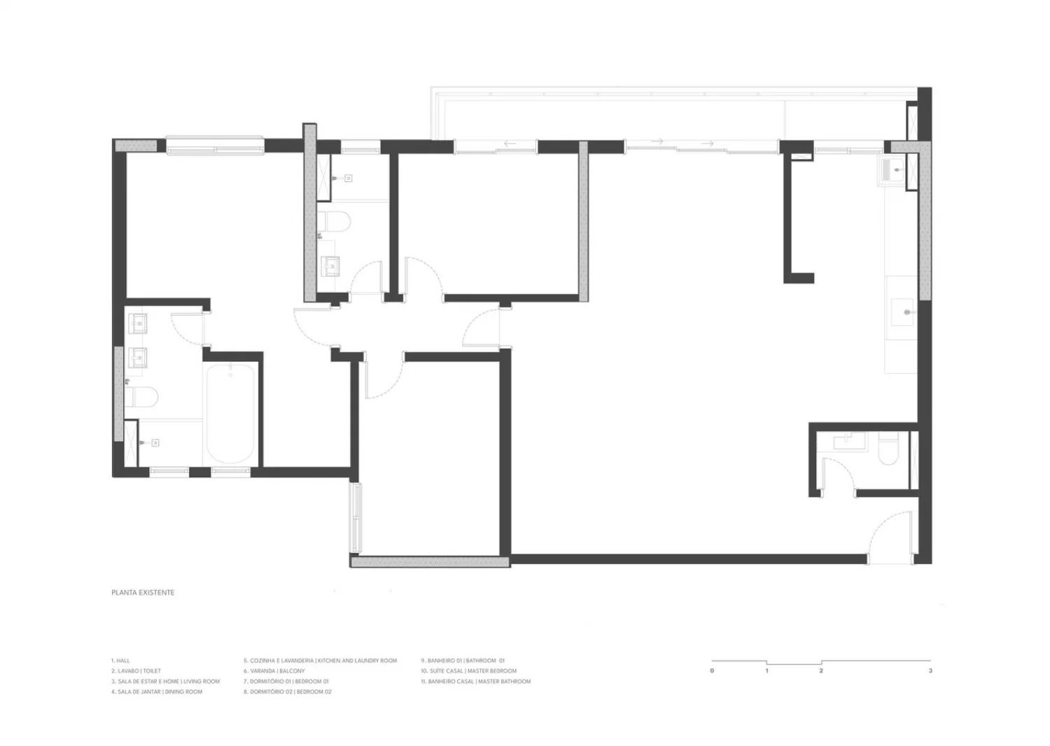
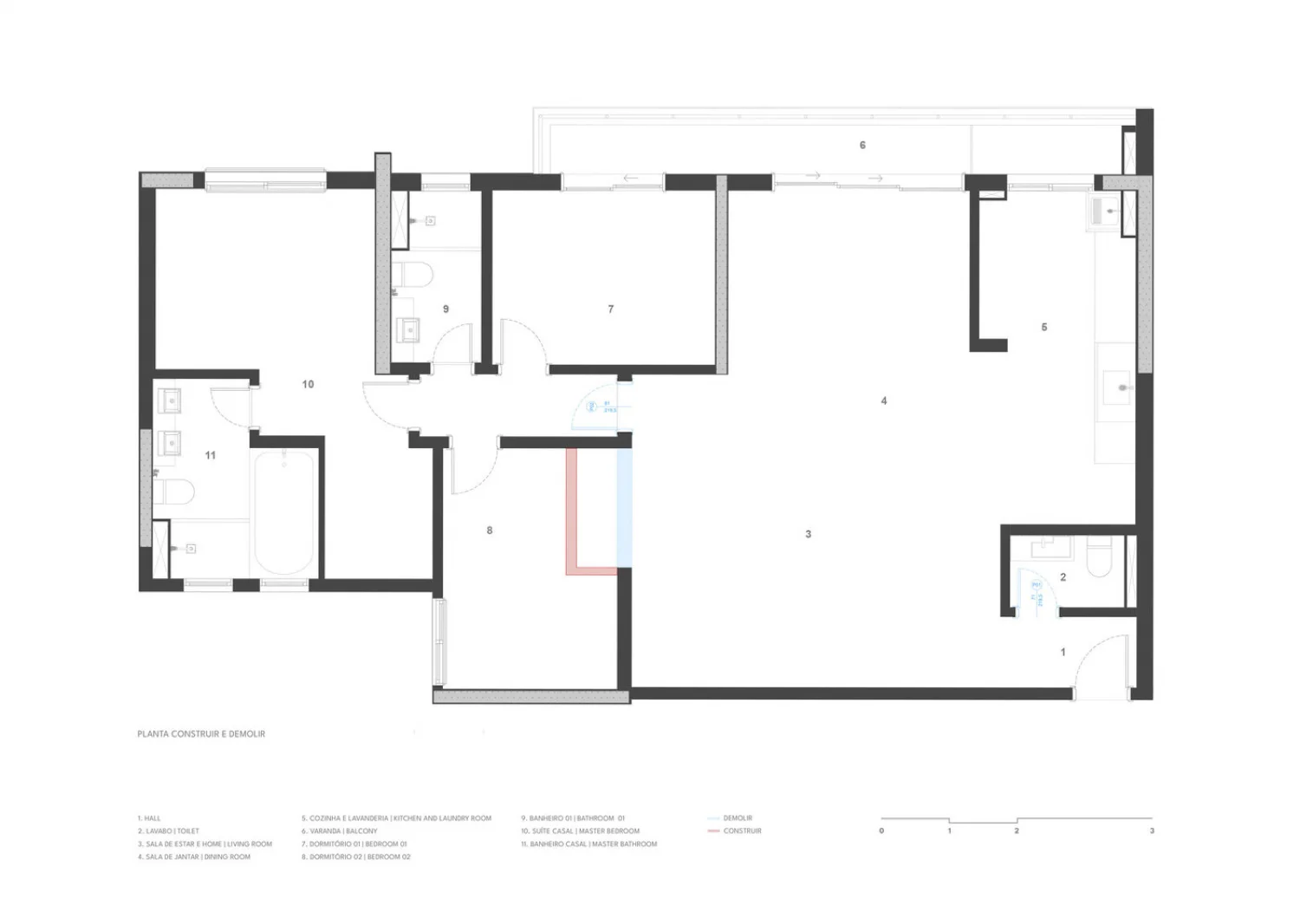
Após uma série de estudos de layout voltados à melhor organização do espaço social no Apartamento Ares, optamos por uma solução central: uma divisória que organiza e articula os dois principais ambientes do projeto. Com formato orgânico e posicionamento livre no espaço, essa peça é mais do que um elemento funcional — ela estrutura a circulação, delimita usos e cria um ponto focal de interesse visual.
A divisória foi projetada para receber a televisão de um lado, garantindo privacidade à sala íntima, enquanto, no lado oposto, atua como um suporte expositivo para obras de arte. Um nicho vazado integra os dois ambientes, permitindo a passagem da luz, o armazenamento de livros e a criação de ritmo e leveza visual.
Um dos principais desafios técnicos foi criar a sensação de que a divisória está "suspensa". Isso foi resolvido com a utilização de pilares metálicos tubulares fixados diretamente na laje, garantindo estabilidade estrutural e, ao mesmo tempo, a leveza desejada desde a concepção do projeto.
O ambiente do escritório foi integrado à área social com flexibilidade, atendendo ao desejo dos clientes de poder isolá-lo ou incorporá-lo conforme a ocasião. O fechamento se dá de forma criativa e inesperada, graças a um sistema que utiliza elementos translúcidos em formas circulares, criando um jogo de luz e sombra que valoriza a estética e confere privacidade sem evidenciar o ambiente quando fechado.
Na cozinha, a integração com a área social acontece por meio de uma ilha central solta — uma peça funcional, com acabamento em inox em três faces e tampo superior em vidro jateado. Um dos lados permanece aberto para receber banquetas, reforçando o caráter acolhedor e versátil do espaço. Os armários e prateleiras seguem a mesma paleta e linguagem da ilha, criando uma unidade visual com a cristaleira.
Pensando na rotina da cliente, que é médica, foi desenvolvido no hall de entrada um espaço multifuncional: prateleiras com profundidades variadas para armazenar máscaras, álcool em gel e outros itens de uso diário, além de gavetas com aberturas para ventilação, destinadas ao armazenamento de calçados.
A iluminação natural, suave e difusa, invade a sala de jantar, ressaltando as texturas e a escolha dos materiais. O aparador de linhas sinuosas equilibra estética e funcionalidade, enquanto a prateleira inferior, com proporções assimétricas e contraste de materiais, completa a composição com sofisticação. O Apartamento Ares é um projeto que busca o equilíbrio entre fluidez, praticidade e identidade — um espaço pensado para viver com arte, conforto e leveza.
Categoria: Arquitetônico Residencial
Localização: Ribeirão Preto
Ano: 2024
Área: 110m²
Arquiteto: Estúdio Mariane Rios
Créditos: Carolina Mossin
