CASA ROYAL
A Casa Royal integra-se ao terreno em declive através de concreto aparente e cobogós, unindo estética brutalista e funcionalidade climática. Por: Fernanda Padula Arquitetura.
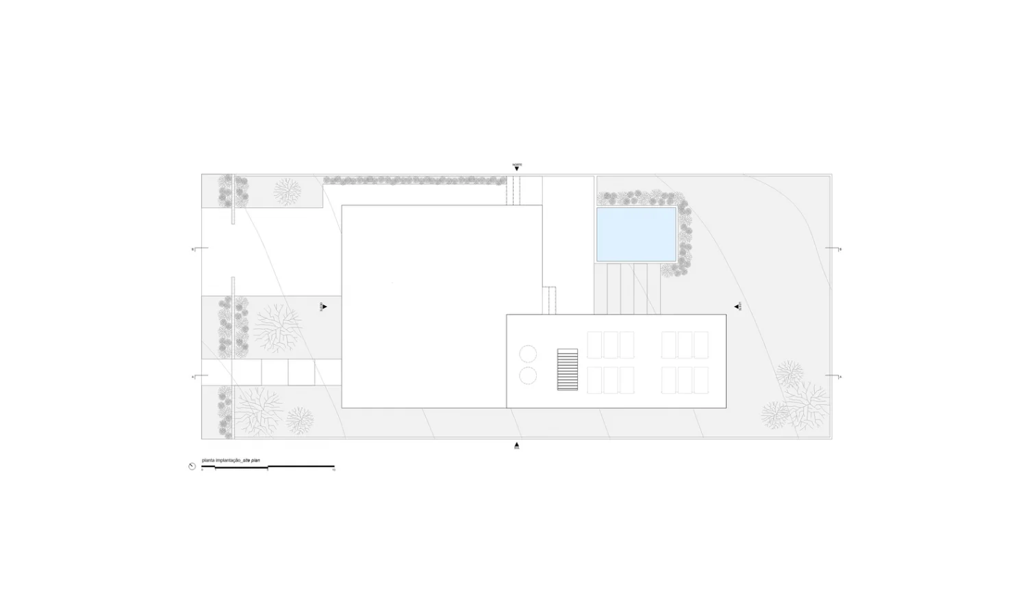
A Casa Royal surge como uma expressão de harmonia entre a arquitetura e o terreno natural. Localizada em um terreno em declive, a casa foi concebida para se integrar ao ambiente. O projeto se destaca pelo uso do concreto aparente, que não apenas reforça a robustez e a funcionalidade da construção, mas também proporciona uma estética crua e genuína, que transmite a força da matéria em sua forma mais pura. As paredes estruturais em concreto, que se elevam e se moldam ao terreno, não são apenas um elemento construtivo, mas também uma manifestação da filosofia brutalista de expressar a estrutura como parte integrante da estética do edifício.
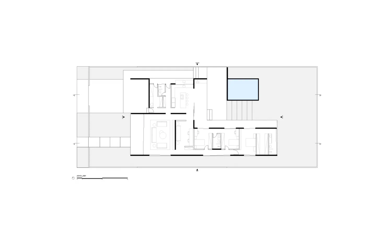
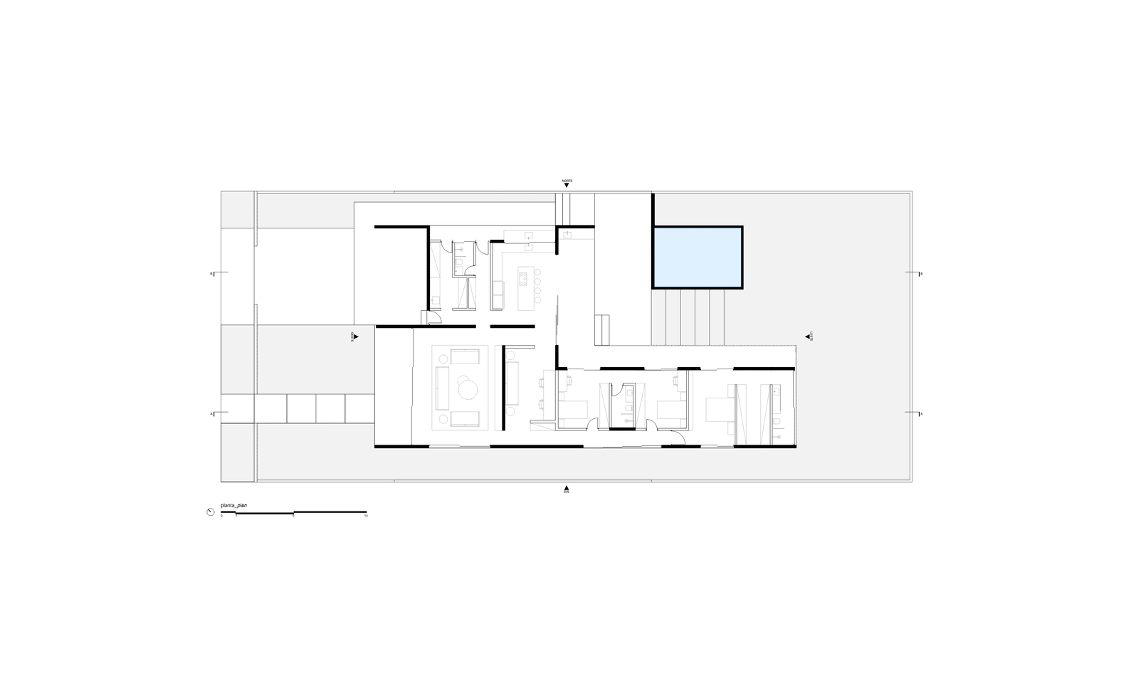
Os tijolos vazados, estrategicamente posicionados nas fachadas dos quartos, funcionam como brises solares, controlando a incidência de luz direta e interpretam um dos mais relevantes objetos arquitetônicos: o cobogó. O uso do cobogó adiciona uma suavidade e permeabilidade ao projeto, criando uma conexão entre os espaços internos e externos, permitindo a entrada de luz natural e promovendo uma ventilação cruzada eficiente.
Além de cumprir funções práticas, possuem um forte caráter estético, trazendo um jogo de sombras que muda com o passar do dia e intensifica a sensação de dinamismo da casa. À noite, a caixa se transforma em uma grande lanterna que ilumina o terreno.
A opção pela casa térrea reforça a ideia de integração com o terreno, proporcionando uma conexão direta e fluida entre os ambientes internos e a natureza que os envolve. O projeto prioriza a experiência de viver em harmonia com o exterior, incorporando elementos naturais à medida que a casa se adapta à topografia do terreno, tornando-se uma extensão da paisagem. O uso de volumes claros e com geometria pura, permitiu ao projeto uma uniformidade e racionalidade no partido, distribuindo a casa em três blocos: serviço, social e íntimo.
Uma casa aparentemente simples, mas, que carrega uma história cheia de desafios e esforços, desde sua concepção. O cuidado e o empenho na execução de paredes, é acompanhado pelo traço do concreto. Cada detalhe da Casa Royal foi cuidadosamente pensado para criar um ambiente único, onde o concreto, o tijolo e a natureza coexistem, proporcionando à moradora não apenas uma residência, mas um refúgio singular onde a arquitetura se torna um prolongamento do seu modo de viver, em sintonia com o espaço e o tempo.
Categoria: Arquitetônico Residencial
Localização: Ribeirão Preto
Ano: 2023
Área: 350m²
Arquiteto: Fernanda Padula Arquitetura
Créditos: Carolina Mossin
