Residência A Porta Azul
Luz e acolhimento definem a proposta de renovação que preserva a identidade da construção. Por: Rafael Pinoti.
Descrição enviada pela equipe de projeto. A porta azul, com sua tonalidade vibrante, simboliza a esperança e a transformação. Essa escolha não é apenas estética; remete à ideia de novos começos e acolhimento, um convite para o que há de bom. Com isso em mente, apresentamos a proposta de reforma de uma residência com estrutura em tijolos aparentes, onde buscamos modernizar o espaço enquanto preservamos suas características originais. A intervenção foi mínima, respeitando a identidade da construção. Optamos por uma pintura branca, que iluminou o ambiente e destacou a textura dos tijolos, conferindo um toque contemporâneo.
Durante a reforma, fizemos uma descoberta interessante: um pilar em concreto, escondido sob camadas de acabamento anterior. Esse pilar, ao ser revelado, foi cuidadosamente integrado ao novo design, abraçado por um móvel suspenso desenhado. Essa combinação não apenas preservou a história da casa, mas também adicionou um elemento arquitetônico intrigante ao espaço.
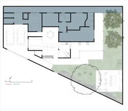
Restauramos também o piso natural de ardósia e madeira, valorizando a beleza dos materiais originais e trazendo um toque rústico e acolhedor ao ambiente. Uma das principais estratégias do projeto foi a criação de aberturas amplas que promoveram a integração entre os ambientes e melhoraram a iluminação e ventilação natural. Janelas e portas de vidro permitiram a entrada abundante de luz, trazendo uma sensação de amplitude e conexão com o exterior. Essa integração não só melhorou a qualidade do espaço, mas também estimulou a interação entre os usuários.
O aspecto sensorial foi fundamental, com a textura rústica dos tijolos harmonizando com a luminosidade do novo acabamento. Cada elemento do ambiente foi pensado para criar uma atmosfera acolhedora e convidativa.
Para complementar a reforma, expandimos a cobertura metálica, transformando-a em um espaço no jardim. Seu maior destaque é uma árvore primavera de mais de 20 anos, cujos troncos tortos e copa generosa proporcionam sombra e conforto. Essa árvore, com sua beleza natural, se torna uma verdadeira escultura viva, emoldurando o ambiente e criando um local perfeito para reuniões familiares e celebrações.
Trabalhamos sempre com a consciência de que as paredes têm histórias e sabem de muitas vivências. Por isso, valorizamos cada elemento que compõe esta residência, respeitando seu passado e trazendo novas memórias. A reforma transformou a casa em um lar que une história e modernidade, proporcionando um espaço inspirador e confortável, onde todos se sentirão bem-vindos. Ficamos entusiasmados com a oportunidade de dar vida a este projeto, respeitando a essência da casa enquanto a adaptamos às necessidades contemporâneas.
"Em essência, a arquitetura deve ser um reflexo das necessidades e desejos das pessoas que habitam os espaços. Projetar para o ser humano é criar ambientes que promovam conexão, conforto e bem-estar. Ao integrar elementos que valorizam a história e a individualidade de cada residência, estamos não apenas construindo estruturas, mas também fomentando lares que acolhem e inspiram. A verdadeira arquitetura humanizada é aquela que escuta as vozes dos seus ocupantes, transformando cada espaço em um lar cheio de significado e afeto."
Categoria: Remodelação
Localização: Não divulgada
Ano: 2024
Área: 220m²
Escritório: Rafael Pinoti
Créditos: Daniel Santo
