Casa Float
Conforto térmico e eficiência construtiva em um projeto que reúne concreto armado e estrutura metálica. Por: Fagner Mendes Gava.
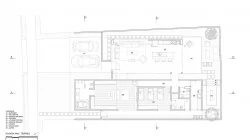
Descrição enviada pela equipe de projeto. A Casa Float foi implantada num condomínio fechado na cidade de Bauru-SP, contemplando uma construção de 221 m² que foi projetada num terreno de 395 m² com formato irregular. O partido arquitetônico se deu a partir de um sonho onde a cliente se via sentada em sua sala cercada por plantas, embaixo de um grande pergolado que se estendia por toda a casa. Tais apontamentos, unidos a um programa construtivo focado na funcionalidade e na integração, foram determinantes para o planejamento dos espaços.
A casa se divide em dois blocos que, separados por um jardim, se distinguem nos quesitos funcionalidade, estética e técnicas construtivas distintas. O espaço privativo é demarcado por um bloco monolítico revestido de pedra madeira, cujo pé-direito mais baixo proporciona a sensação de aconchego e acolhimento. Essa ala da casa é composta pela área de serviços, lavabo e duas suítes tendo a possibilidade de ampliação de uma terceira suíte sem grandes intervenções internas. A área social é demarcada por seu pé-direito mais alto com grandes panos envidraçados, que possibilitam a integração do visual interno com o externo, tornando o jardim uma extensão da sala.
Esses dois volumes são unidos por um pano único de telhado desprendido do corpo da casa. Soltar a cobertura sugeriu a criação de um vazio de ventilação acima dos quartos, amenizando a temperatura interna dos ambientes, consequentemente, criou-se o efeito de ventilação cruzada na área social, tornando o ar-condicionado um elemento dispensável. A cobertura foi pensada para uso de telhas metálicas tipo painel, apoiadas sobre vigas que seguem no sentido longitudinal de toda a residência já criando a queda para os fundos. Abaixo, foi instalado um pergolado-forro em madeira que possibilitou abrigar o sistema de iluminação e outros equipamentos de infraestrutura necessários.
Para obtermos o resultado arquitetônico desejado, naturalmente o projeto seguiu a adoção do sistema-misto de estrutura, com concreto armado e estrutura metálica, o que possibilitou grandes vãos envidraçados sem interrupção de pilares.
Categoria: Arquitetônico Residencial
Localização: Bauru
Ano: 2020
Área: 221m²
Arquiteto: Fagner Mendes Gava
Créditos: Pedro Mascaro
