Confeitaria Tetê
O controle da insolação e o uso de luz indireta com o aconchego da madeira. Por: Caracho Arquitetos.
Descrição enviada pela equipe de projeto. Implantado em um lote de esquina, o projeto para esta confeitaria busca romper com os padrões de ocupação do solo da região, através de um grande recuo proposto na face de maior dimensão do edifício, onde se organizam o estacionamento e um espaço de estar que se projeta a partir da área de exposição e vendas da confeitaria. Além de ampliar a visibilidade da fachada, tal solução destaca o edifício das construções envoltórias.
Em termos formais, buscou-se uma volumetria simples e pura, o que é abordado em suas quatro fachadas. Tais aspectos são desenvolvidos a partir de uma relação de dualidade entre os dois principais setores programáticos: produção e exposição. Essa relação se reflete tanto nas propriedades sensoriais dos materiais quanto nas características geométricas do edifício: enquanto o volume da produção é mais introspectivo, conformado em uma massa opaca, de dimensões verticais e fechamento em superfície áspera – fulget – e cromaticamente fria, o outro volume, da exposição, é um bloco térreo, de faces lisas, conformado em uma caixa transparente, com interior iluminado e em cor mais quente – madeira –, que se projeta para fora através de uma grande varanda urbana.
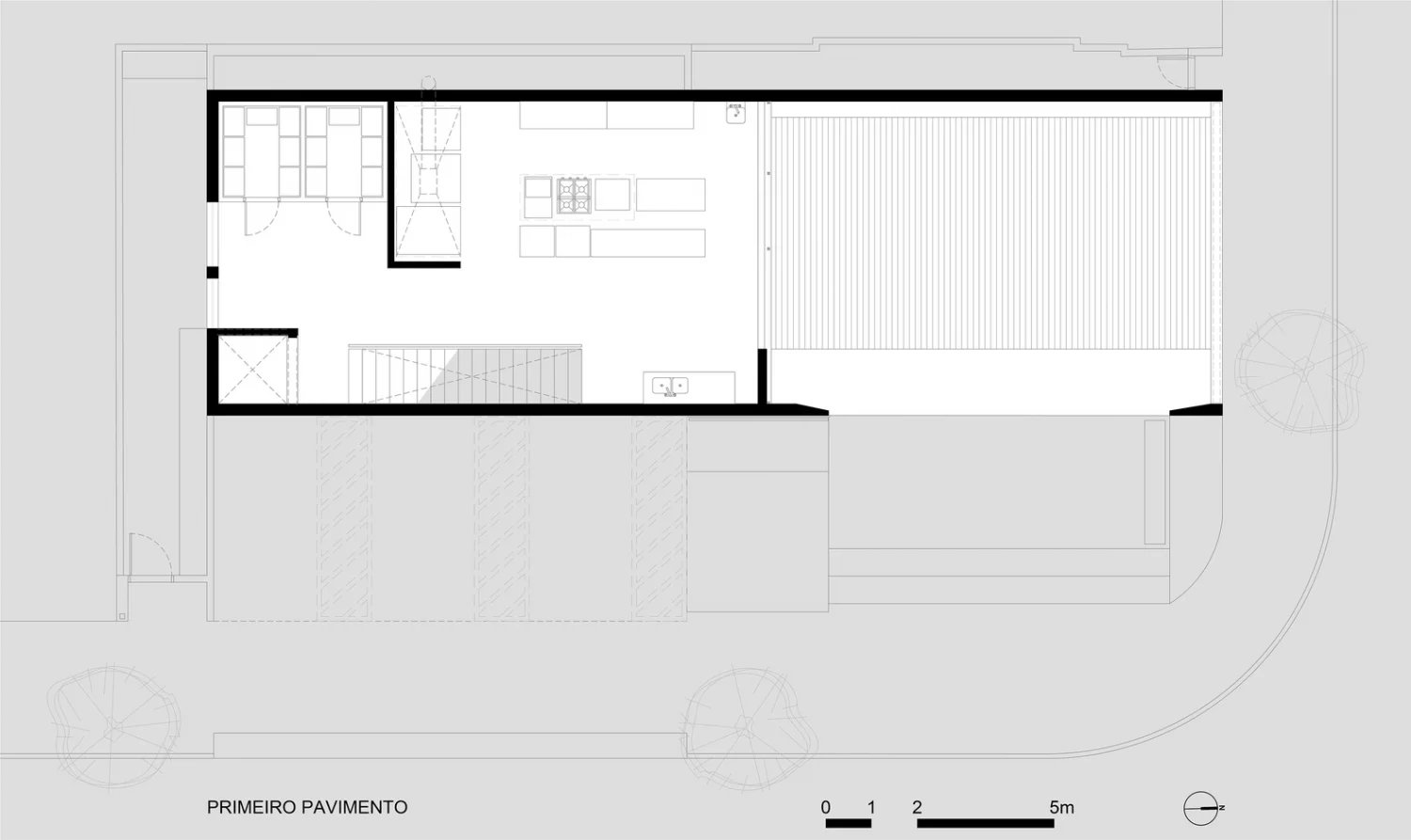
Com um programa mais extenso, a área de produção é organizada em três pavimentos de acordo com os distintos processos que envolvem seu uso diário. No segundo pavimento, está o setor de serviços e armazenamento, com vestiários e copa para os funcionários, depósitos para materiais de limpeza e para estocagem de insumos. Logo abaixo, no primeiro pavimento, foi alocada a área “quente”, ou seja, os equipamentos da parte pesada de produção de doces e salgados, além das câmaras refrigeradas. Já o térreo se destina aos procedimentos de finalização, com um pequeno depósito e escritório, este lindeiro ao setor de exposição.
Além disso, o controle da insolação, bem como o aproveitamento de luz natural, são aspectos muito presentes no edifício. Um domus sobre a projeção das escadas funciona como poço de luz zenital, ao passo que um pano de vidro no fechamento da área de produção proporciona iluminação natural aos pavimentos superiores. Na lateral do edifício, voltada para o noroeste, um grande brise em madeira protege as aberturas da insolação direta nos fins de tarde.
A pequena área de exposição apresenta um tratamento bastante detalhado, onde os confeitos são dispostos em caixas de vidro – vitrines – suspensas. A espacialidade da loja é delimitada por uma pele de madeira que envolve todas as suas superfícies – paredes, piso e teto. As características táteis do material são exploradas também pela comunicação visual, que é esculpida na própria madeira.
Categoria: Arquitetônico Comercial
Localização: Bauru
Ano: 2016
Área: 315m²
Arquiteto: Caracho Arquitetos
Créditos: Bruno Ducatti
