Caixa de Vidro
Estrutura leve e vedações em vidro definem a volumetria da residência. Por: Rafael Pinoti.
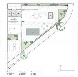
A residência localiza-se em Birigui, em um terreno triangular de 308 m² com leve aclive e vista para o skyline de Araçatuba. A implantação prioriza a face norte e utiliza a localização isolada para favorecer a contemplação. O volume superior consiste em uma estrutura de vidro e aço que paira sobre a base, criando a sensação de uma passarela flutuante. A fachada norte utiliza vedação pura em vidro com controle por cortinas verticais, enquanto a estrutura metálica garante leveza ao conjunto.
O programa organiza-se em dois pavimentos. No inferior, a área social e de serviços ocupa o eixo do lote, protegida pela projeção do andar superior que funciona como uma marquise. O acesso ao nível íntimo ocorre por uma escada em chapa metálica dobrada. No pavimento superior, as suítes são conectadas por uma circulação envidraçada voltada para o horizonte. O projeto conta ainda com uma praça aberta sobre o volume de alvenaria inferior, explorando diferentes níveis e vazios.
Categoria: Arquitetônico Residencial
Localização: Birigui
Ano: 2023
Área: Não divulgada
Arquiteto: Rafael Pinoti
Créditos: Daniel Santo
