G20+19
O projeto nasce de uma reflexão sobre a mudança na relação entre o homem e a moradia no cenário pós-pandemia. Por: Rafael Pinoti.
"Parece que vivíamos em um espaço inverso antes desta pandemia. Hoje conto os segundos para retornar à minha casa, meu espaço, minha família." Diz a cliente.
O trajeto diário desenha uma narrativa particular do interior paulista: parte-se de um perímetro industrial, cruza-se o tecido urbano por uma rodovia que presenteia com a variação da paisagem natural, até avistar, ao longe, o condomínio onde a residência se situa puro cenário característico do interior de São Paulo.
Adentrando o condomínio, o percurso se estende até o último e mais elevado quarteirão. De longe, já se avistam duas volumetrias puras e simétricas, abraçadas e unificadas por uma marquise livre, flutuante e expressiva — uma arquitetura de caráter atemporal.
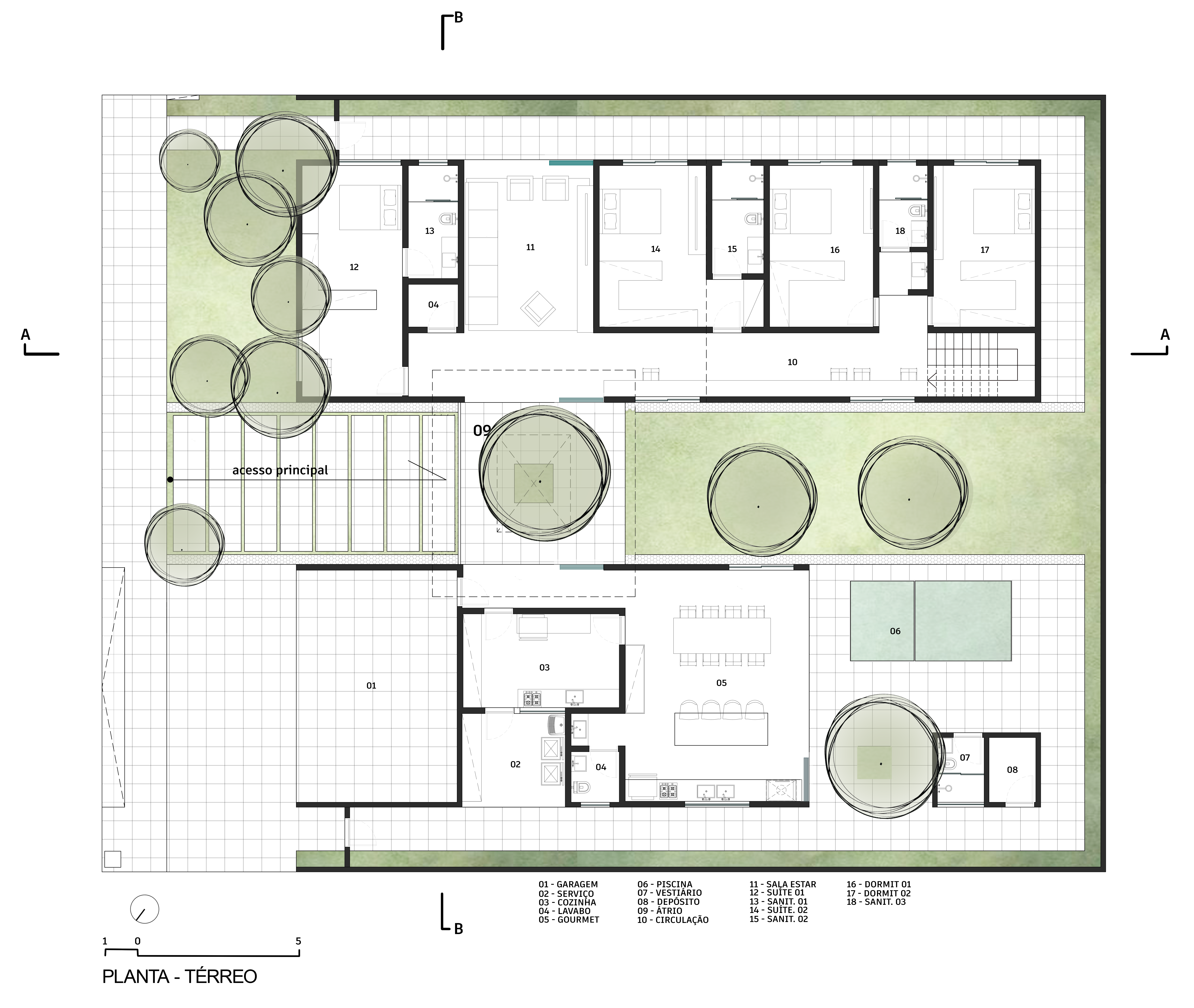
O desafio projetual
O que instigou a criação do G20+19 foi o desafio de projetar uma residência em lotes desanexados, sem possibilidade de unificação registral e com normativas restritivas. Ainda assim, alcançou-se uma solução elegante em sua simplicidade: duas volumetrias frontais nomeadas, após estudos de insolação e conforto térmico, como bloco íntimo (à esquerda) e bloco social (à direita).
O acesso se dá pelo eixo central, conformando uma praça entre os volumes. Atravessa-se a vegetação, toca-se uma porta de madeira recuperada de antiga estrutura de telhado, e depara-se com a marquise que abraça e confere segurança à união dos blocos.
Habitar o externo
Por influência da pandemia, o externo já objeto de desejo de muitas pessoas tornou-se a característica mais contundente do projeto. Criaram-se circulações e transições constantes entre interno e externo.
A casa revela-se envolvente: amigos convidados já não sabem onde preferem permanecer. Mesmo profundamente aberta, a residência consegue criar privacidade para momentos íntimos sem interromper o fluxo da vida doméstica. É algo muito distinto da visão que se tinha de morar.
Descobriu-se, aqui, o poder da arquitetura no cotidiano uma casa onde é possível deitar-se sobre a laje à noite e, olhando para o céu, ser engolido pelas estrelas.
Manifesto sensorial
Um dos pontos altos da experiência residencial é a apropriação das coberturas. O design incentiva o uso da laje como um espaço de contemplação noturna, permitindo uma conexão direta com o céu e as estrelas, elevando a arquitetura para além da função de abrigo. A filosofia por trás do G20+19 foge da simples construção de paredes e revestimentos luxuosos. O objetivo primordial do arquiteto foi envolver o usuário em uma experiência sensorial, onde o espaço físico é capaz de despertar emoções e transformar o cotidiano por meio do design.
Categoria: Arquitetônico Residencial
Localização: Birigui
Ano: 2021
Área: Não divulgada
Arquiteto: Rafael Pinoti
Créditos: Daniel Santo
