CASA GÊMEOS DALI
O convívio familiar como cerne do lar. Por: Laércio Fabiano Arquitetura.
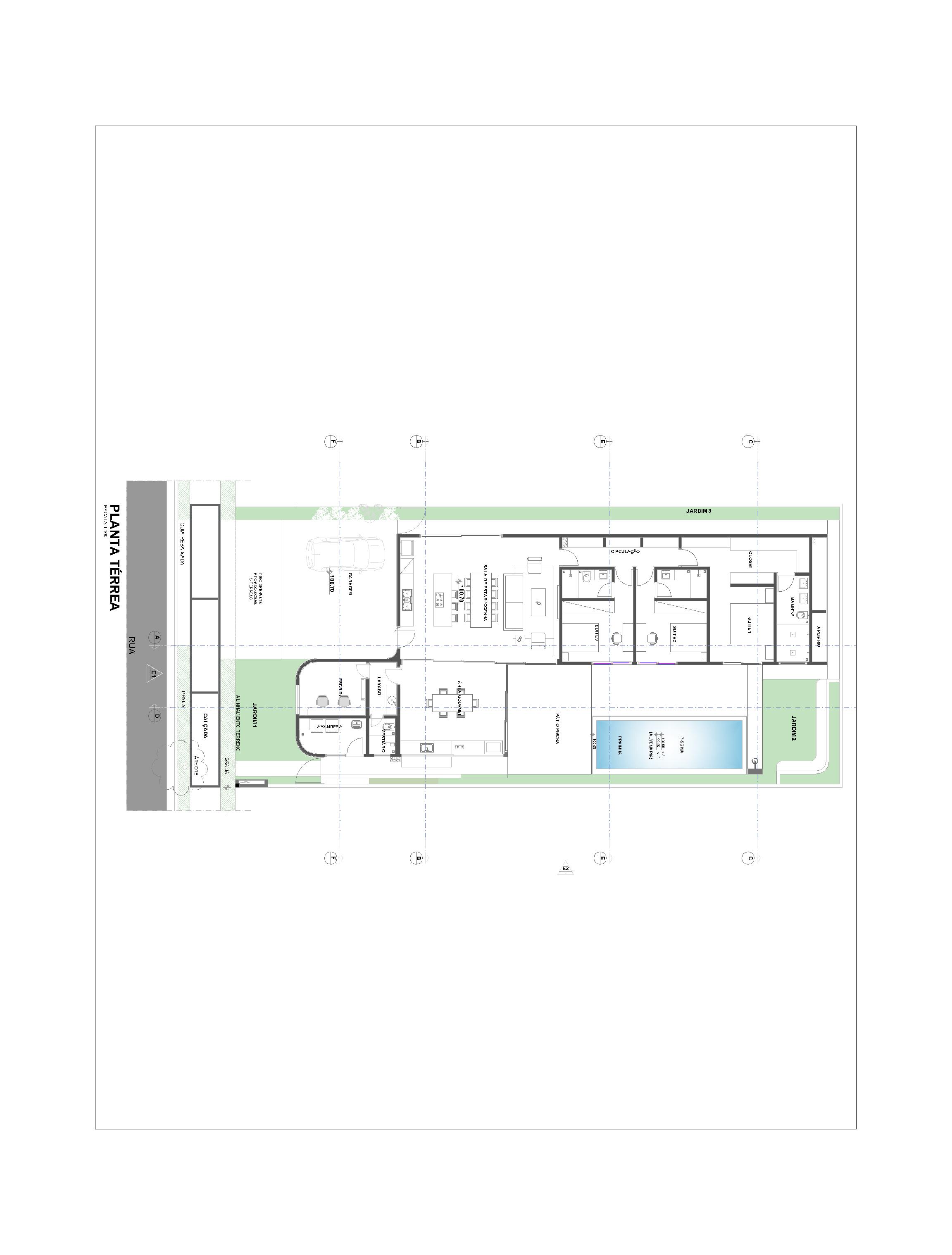
O projeto da Casa Gêmeos Dali, assinado pelo arquiteto Laércio Fabiano, foi concebido com o propósito central de harmonizar conforto e praticidade para uma família com dois filhos gêmeos. A organização espacial prioriza a autonomia e o bem-estar, dispondo de três suítes que garantem a privacidade dos moradores, sendo uma dedicada ao casal e duas concebidas especificamente para atender às necessidades dos filhos.
A ala social destaca-se pela amplitude, integrando a sala de estar ao jantar e à cozinha, o que favorece o convívio familiar ininterrupto. No coração deste espaço, a cozinha planejada conta com uma ilha central que não apenas organiza o fluxo de preparo das refeições, mas também se estabelece como um ponto de encontro.
Complementando o programa interno, o projeto incorpora um escritório estrategicamente posicionado com vista para a rua — um elemento que resgata memórias da infância dos pais e funciona como um espaço multiuso para trabalho e atividades lúdicas.
“Foi importante incluir o espaço gourmet externo, como um quintal, piscina e jardim, onde as crianças possam brincar e os pais possam relaxar tendo vista para eles.” diz Laércio Fabiano.
O lazer externo foi desenhado como uma extensão da casa, onde a visibilidade entre os ambientes permite que o descanso dos adultos e o brincar das crianças ocorram de forma integrada e segura.
A funcionalidade é reforçada pela inclusão de um banheiro externo acessível e uma área de serviço independente, garantindo que a rotina doméstica seja fluida. Em cada detalhe, a residência reafirma o compromisso com a acessibilidade e a eficiência, adaptando-se com precisão às demandas contemporâneas de uma família em crescimento.
Categoria: Arquitetônico Residencial
Localização: Bauru
Ano: 2023
Área: 229m²
Arquiteto: Laércio Fabiano Arquitetura
Créditos: Daniel Santo
