CASA QUADROS
Onde privacidade e aberturas não são antagônicas. Por: Gruta Arquitetos.
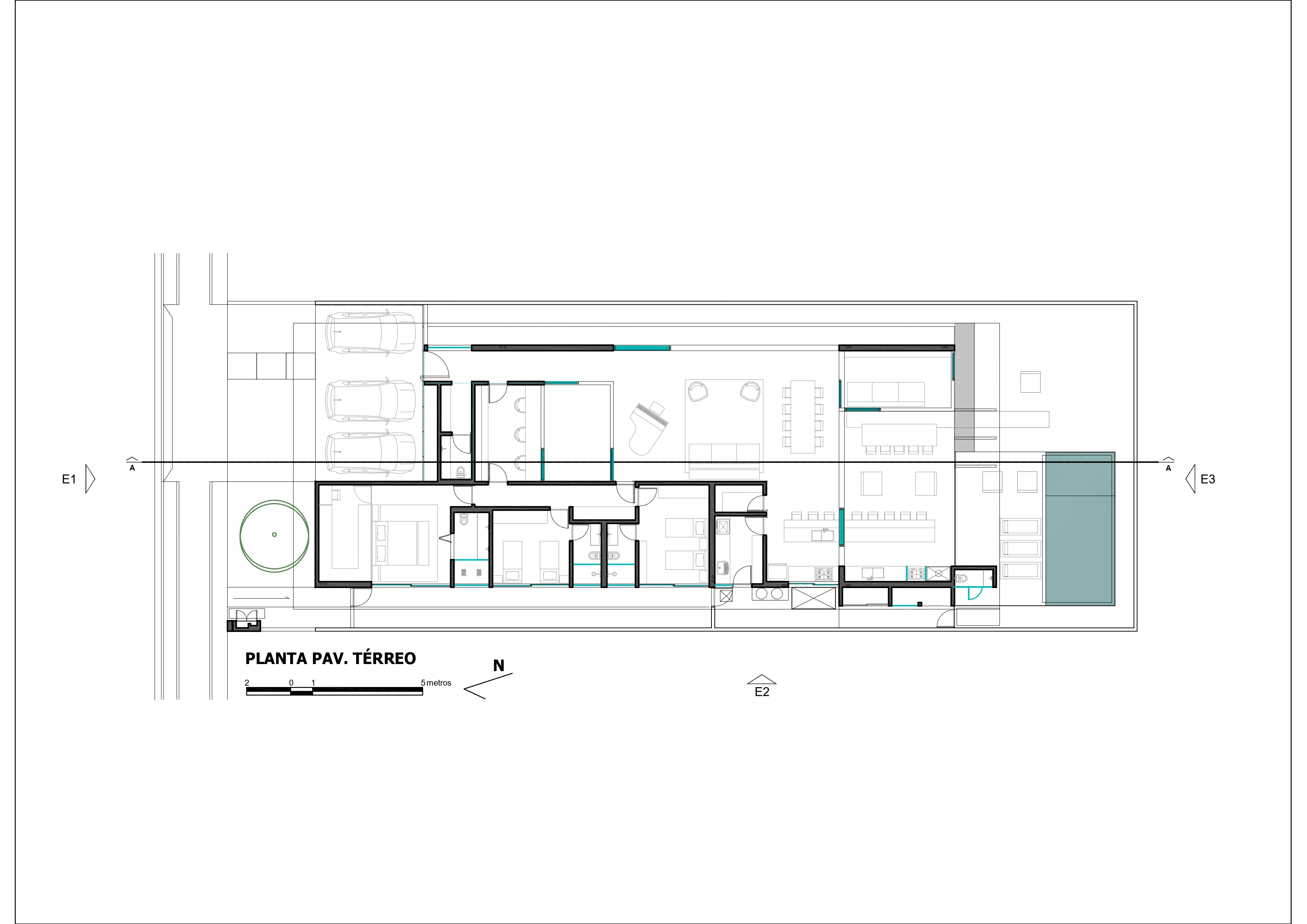
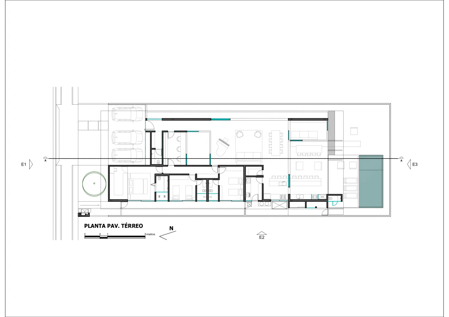
A Casa Quadros, projetada pelo escritório Gruta Arquitetos, foi concebida para abrigar uma família composta por um casal e três filhos em um lote de 620 m² em condomínio fechado. A implantação estratégica buscou organizar a compartimentação de maneira que os recuos obrigatórios fossem incorporados como áreas de integração social. Ao concentrar a ala íntima em um bloco longitudinal, a arquitetura estabelece um ponto de partida claro que libera o restante do terreno para o convívio.
A dinâmica dos moradores, pautada pela música, artes plásticas e gastronomia, exigiu um programa funcional altamente integrado. O projeto responde com um setor social permeável, onde o escritório-ateliê e a sala de música são articulados por uma clareira central que abriga uma jabuticabeira. A transição para a área de lazer, composta por piscina e sala de televisão, é feita de forma fluida pela cozinha e área gourmet, garantindo que as atividades familiares ocorram em simultaneidade e harmonia.
"Os vedos laterais foram substituídos por esquadrias para levar o jardim para dentro e jogar os ambientes para fora, driblando os limites entre os planos." Diz Gruta Arquitetos.
A privacidade em relação aos vizinhos é garantida pelo uso de um gabarito propositalmente mais baixo que o entorno. Esta escolha, somada ao plano único em laje painel, cria uma leitura visual contínua e ininterrupta do teto em toda a extensão da área social. A materialidade da residência prioriza elementos naturais e superfícies puras, resultando em uma arquitetura que interfere sutilmente no espaço e valoriza a experiência sensorial dos usuários.
Categoria: Arquitetônico Residencial
Localização: Bauru
Ano: 2024
Área: 620m²
Arquiteto: Gruta Arquitetos
Créditos: Daniel Santo
