COBOGÓ
Espaço atemporal que celebra o design brasileiro através da simplicidade cromática. Por: Joice Pretel.
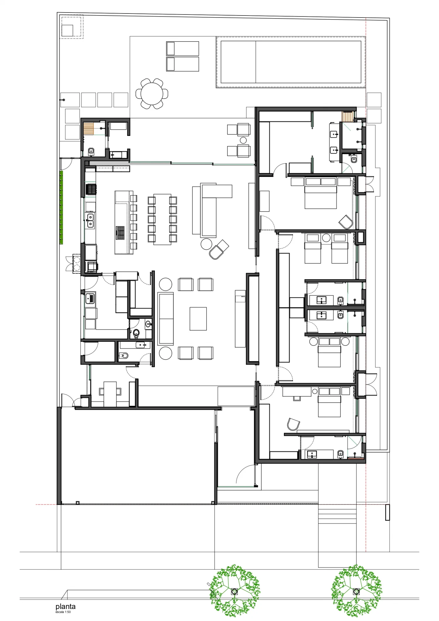
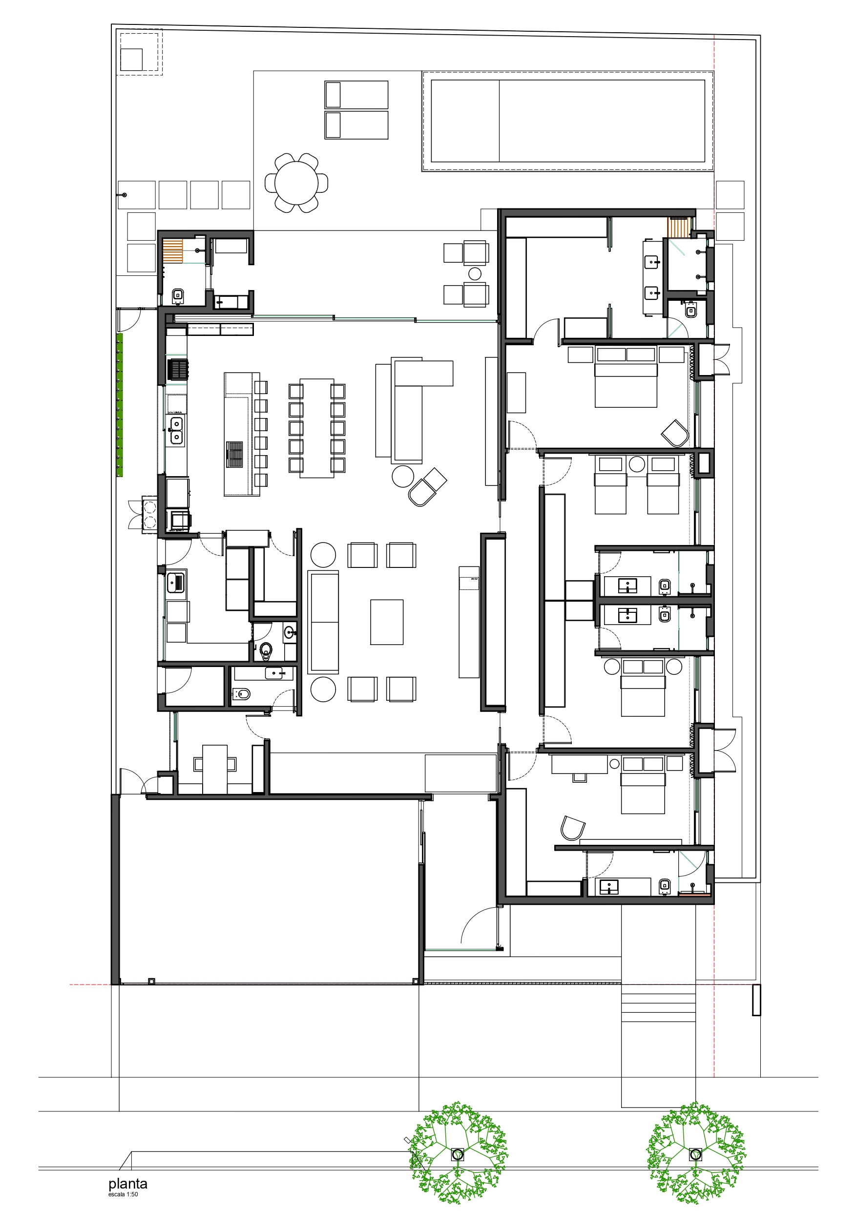
O projeto Cobogó materializa a busca pela essencialidade. Desenvolvido por Joice Pretel em Bauru - SP, a residência parte de um princípio formal claro — o paralelepípedo branco — e mantém-se fiel a essa linguagem desde a concepção até a execução final.
A casa responde ao desejo da família por uma arquitetura com espaços fluidos, materialidade contida e uma paleta cromática atemporal, deliberadamente avessa a tendências passageiras. O projeto cria suportes espaciais onde as memórias familiares possam se inscrever livremente.
O acesso à residência é marcado por um biombo de cobogós que permite a transição entre exterior e interior. Este elemento filtra a luz natural e estabelece um contraste sensorial: do hall revestido em carvalho — um ambiente contemplativo — emerge a profusão luminosa dos espaços de convivência, onde o branco se desdobra em suas variações mais sutis.
A neutralidade cromática não é casual. O branco e o off-white configuram um campo visual que acolhe peças fundamentais do design brasileiro — obras de Sérgio Rodrigues, Paulo Alves e Aristeu Pires — em diálogo com uma intervenção do artista plástico Gastão Debreix. A arquitetura, aqui, atua como moldura discreta para que mobiliário e arte possam protagonizar o espaço doméstico.
Este projeto esteve entre os finalistas do Prêmio da Revista Projeto (edição 24) na categoria design de interiores - Indicações Portobello; E também do Prêmio FORMA, o prêmio de arquitetura e design do interior de São Paulo na categoria design de interiores.
Categoria: Design de interiores
Localização: Bauru
Ano: 2024
Área: Não divulgada
Escritório: Joice Pretel
Créditos: Daniel Santo
