ESTÚDIOS 1323
Adensamento habitacional que equilibra racionalidade construtiva e qualidade espacial. Por: Gruta Arquitetos.
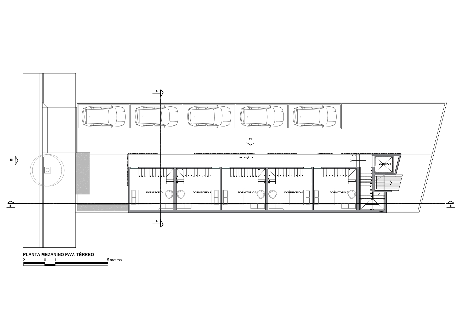
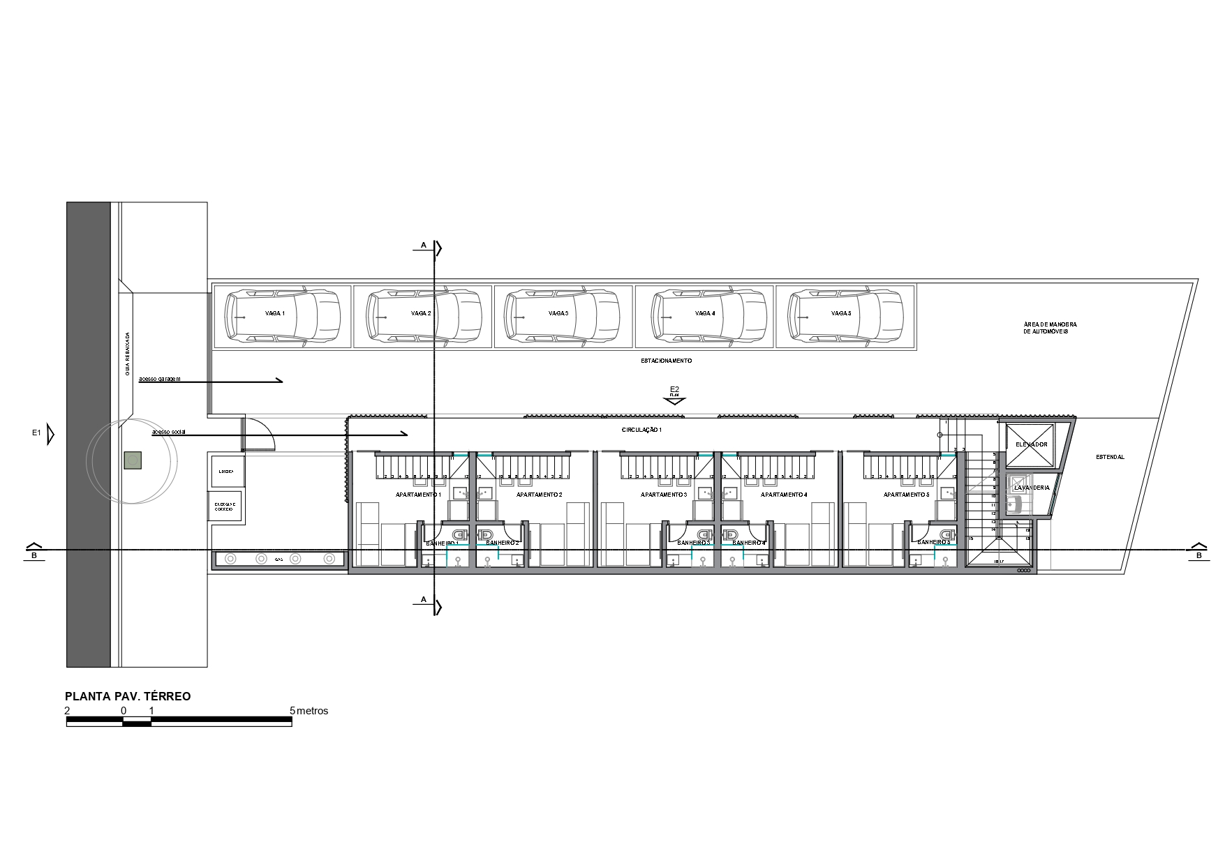
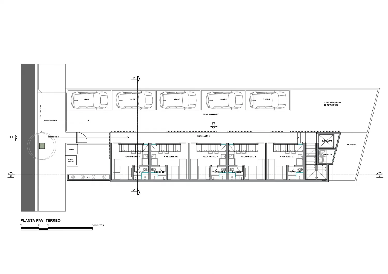
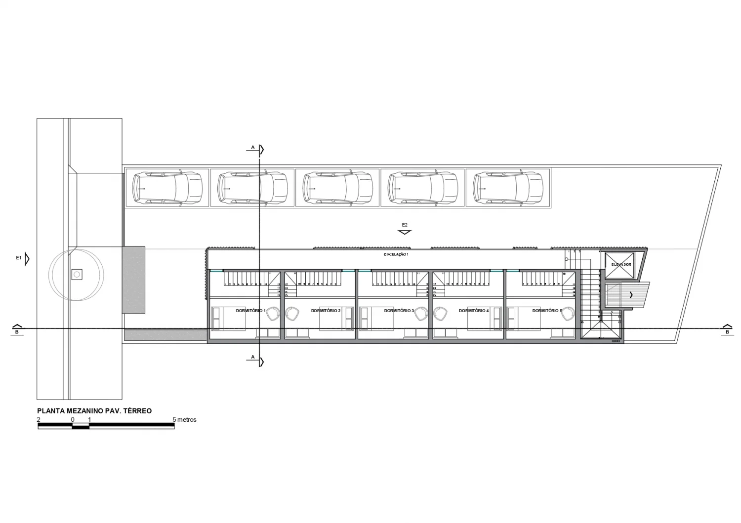
O projeto dos Estúdios 1323, desenvolvido pelo escritório Gruta Arquitetos, foi elaborado a partir da intenção de adensamento habitacional do proprietário. Com lote de topografia regular e área de 360m², o plano de massas proposto foi a racionalização da geometria na implantação e a possibilidade de ofertar o espaço livre mais desafogado possível, resultando no bloco com 10 apartamentos distribuídos numa verticalização de 2 pavimentos, atingindo o limite do potencial construtivo permitido na região.
Com entorno imediato ocupado por edifícios de baixo gabarito, posicionamos as aberturas e percursos voltados à lateral que cria perspectiva em declive da região sul da cidade, aproveitando as visuais e a orientação solar favorável.
As soluções arquitetônicas do edifício seguiram tópicos estéticos, técnicos e de viabilidade a fim de driblar antagonismos entre limites de orçamento e qualidade de espaços. Para manter equilíbrio de custo ante a verticalização das unidades, elaboramos estrutura e vedos sem camadas de recobrimento: vigas e pilares de concreto armado e blocos cimentícios apenas com camadas hidrofugantes para proteção. A infraestrutura elétrica foi dimensionada e executada externa à alvenaria, conduzida por eletrodutos metálicos aparentes.
A materialidade de edifício e espaços convergem e criam mimetismo num degradê sutil de tons acinzentados que recebem um invólucro acortinado de painéis metálicos perfurados, responsáveis por filtrar a incidência solar aos apartamentos e produzir silhuetas e cenas aos que observam do entorno. Essa pele metálica perfurada funciona simultaneamente como elemento de controle ambiental e como definidor da identidade visual do conjunto.
Categoria: Arquitetônico Comercial
Localização: Bauru
Ano: 2022
Área: 365m²
Arquiteto: Gruta Arquitetos
Créditos: Daniel Santo
