CARACHO ARQUITETOS ESCRITÓRIO
Edificação que transforma as restrições topográficas e urbanas em oportunidade de integração com a cidade. Por: Caracho Arquitetos.
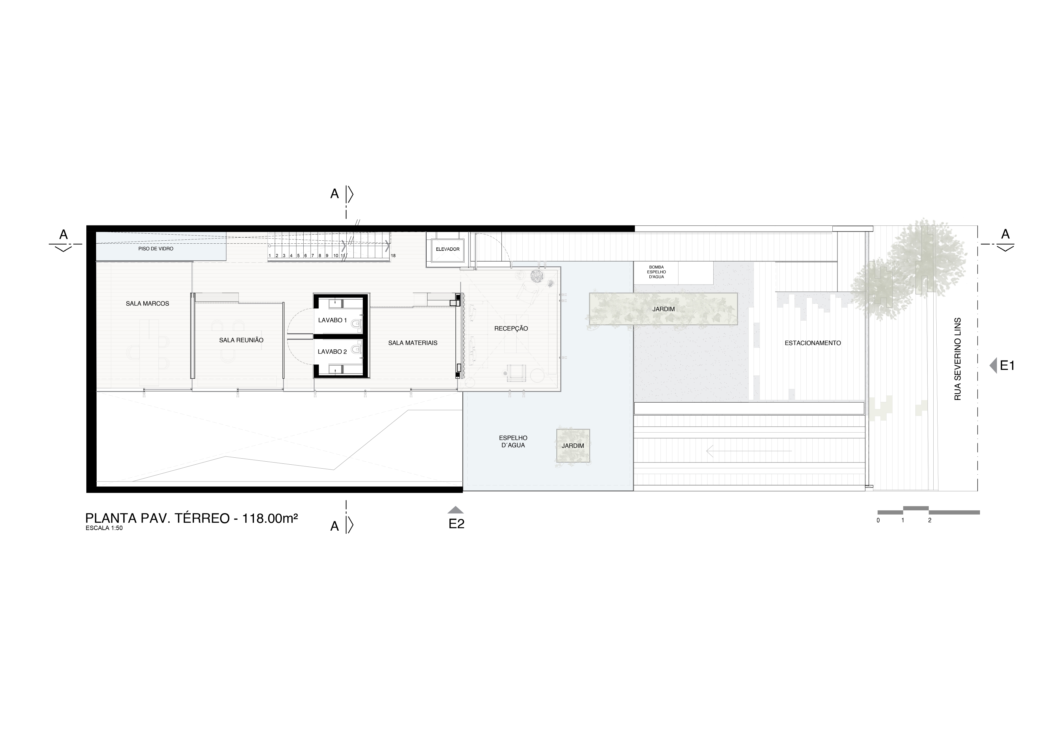
O escritório Caracho Arquitetos, localizado em um lote urbano na cidade de Bauru, tem na relação com o meio ambiente urbano seu maior atributo. A edificação projetada para abrigar o escritório de arquitetura explora as potencialidades do terreno de forte declive, convertendo uma aparente limitação em partido projetual.
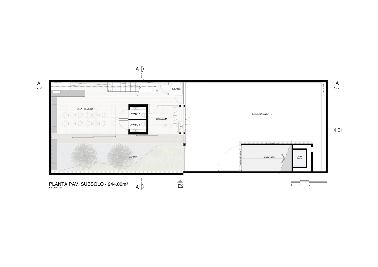
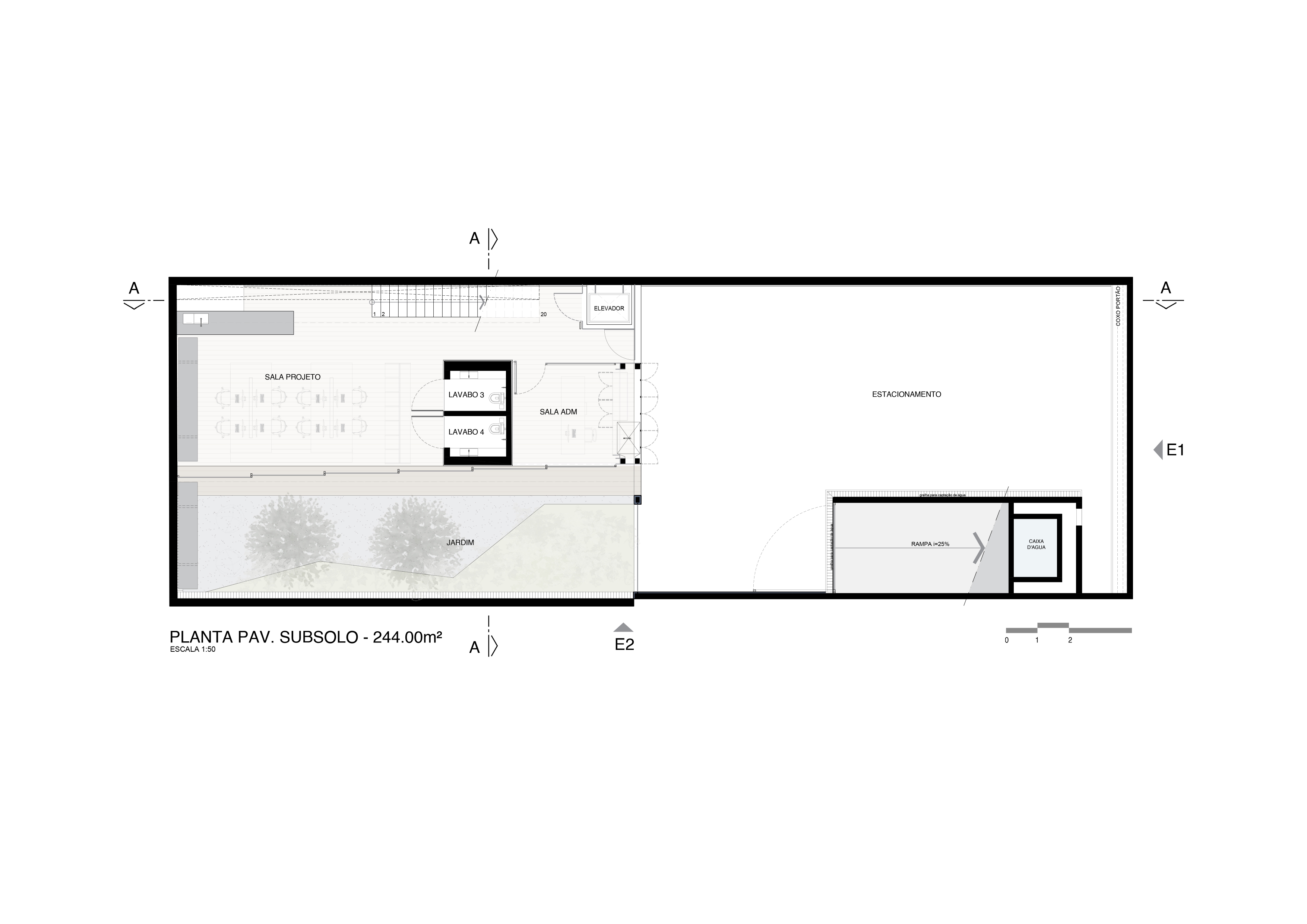
A implantação oferece a possibilidade da criação de um generoso subsolo com itens de maior dimensionamento do programa. Assim, garagem, administração e sala de projetos ocupam esse pavimento ao lado de um pátio com jardim e muita luz natural, aproveitando a topografia para qualificar os espaços de trabalho mesmo em nível inferior.
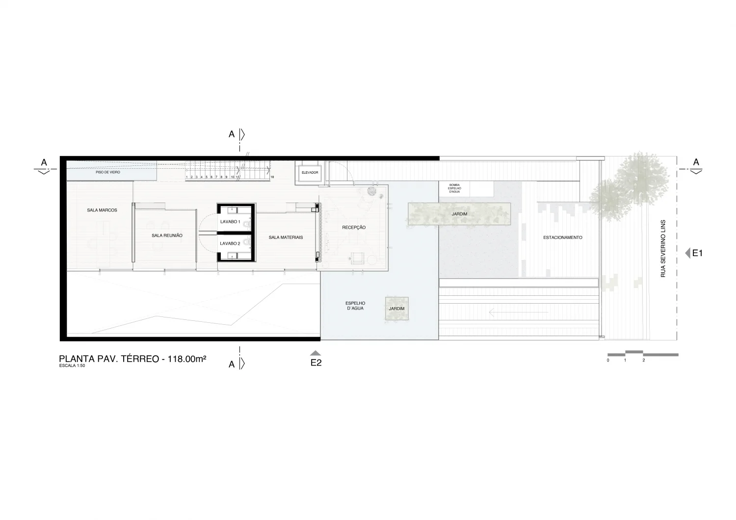
Os demais pavimentos ficam circunscritos em somente cerca de um terço do terreno de modo a oferecer uma experiência onde o recuo do edifício torna-se uma praça no nível da rua, toda aberta para a cidade, tendo como barreira tênue o espelho d'água. Trata-se também de fazer presente a abordagem de transgredir as limitações impostas pela legislação que comumente acaba por desenhar a cidade, propondo uma nova relação entre espaço privado e público.
Duas "peles" definem a envoltória do edifício. A interna de vidro e a externa em tela solar trazem iluminação natural filtrada, garantindo também privacidade e conforto térmico, essencial para a região oeste paulista. Essa solução de dupla camada responde às demandas climáticas locais sem abrir mão da transparência e da conexão visual com o entorno urbano.
Categoria: Arquitetônico Comercial
Localização: Bauru
Ano: 2017
Área: Não divulgada
Arquiteto: Caracho Arquitetos
Créditos: Carolina Mossin
