RESTAURANTE PARRILLA
Projeto que celebra o pré-existente através da mínima intervenção, transformando a ausência em estratégia projetual. Por: Aalva Arquitetos.
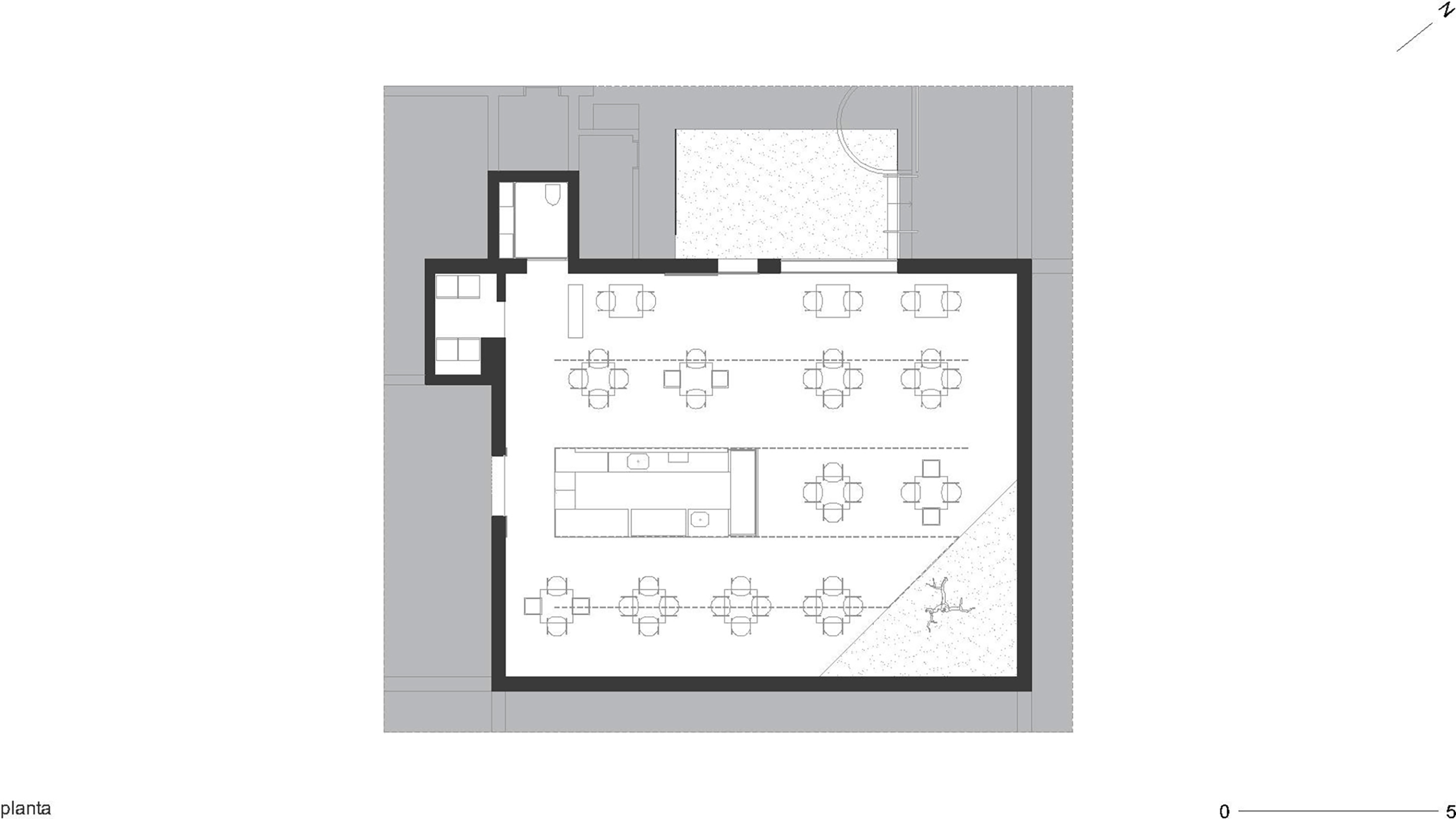
O Restaurante Parrilla, desenvolvido pelo escritório AALVA, parte de um imóvel que sintetizava aquilo que encontramos em nossa cidade todo dia: camadas, materiais diversos, supressões e adições, peças de instalações desativadas, marcas do uso e do tempo, além de um amplo vazio. Tudo aquilo que, na concepção geral da rotina profissional, costuma-se admitir como ruim, evitável, de alterável no projeto estava presente nas seis faces do volume paralelepipedal de seu interior.
Ao invés de intervir, a proposta optou por uma organização que muito aceita e pouco se impõe em relação ao pré-existente no prédio. Esses planos visuais ortogonais resultaram naquilo que seria o partido do projeto: a ausência. Uma caixa com um vazio ubíquo conformando o espaço. Como o programa destinado é o atendimento ao público, posicionou-se, de maneira isolada e central, uma estação de trabalho, a ilha, para a finalização dos pratos. Tem-se, portanto, a flexão mínima de elementos.
As texturas e rasgos, como composição visível da paisagem, foram equilibradas pelo controle cromático, pela pontualidade de mobiliários e pela leveza e suspensão das estruturas. Como resultante, temos elementos construtivos que permeiam entre o popular e o erudito, entre preexistência e concepção, neutralidade e protagonismo, embasamento e suspensão.
O agenciamento visual e físico dessa ausência massiva nos faz pensar que este é um projeto de arquitetura do invisível. Um paralelo entre o conceito "on-off" do Archigram, abstrato e concreto, a binária combinação polar em que um reforça ao outro. Conceitualmente, o projeto se coloca entre as mais diversas dialéticas e tensões, como a não separação de banheiro para clientes, o qual é apenas um, agênero.
Uma atuação que se discute com os materiais do cotidiano do ofício, que toca o popular da construção, que se desenvolve a partir da cerâmica e do metal. Não seriam essas as materialidades da imagem ordinária de uma churrasqueira? Uma poética tese e antítese entre os equipamentos industriais e tecnológicos de serviço e o manuseio pessoal nas operações de preparo, além de pouco se clamar por um espetáculo das formas. Ou, como diria Peter Cook, talvez fizemos aparentemente o nada.
Categoria: Arquitetônico Comercial
Localização: Bauru
Ano: 2019
Área: 148m²
Arquiteto: Aalva Arquitetos
Créditos: Marcos dos Reis
