ESCOLA MAPLE BEAR MARÍLIA
Projeto vencedor prêmio FORMA na categoria Heer. Por: Fagner Mendes Gava.
Fagner Mendes Gava | Marília, SP | 2021 | Escola Maple Bear Marília - Projeto vencedor do prêmio FORMA na categoria Heer.
Vencedor de concurso particular entre quatro escritórios de arquitetura, o projeto da escola bilíngue Maple Bear em Marília, assinado por Fagner Mendes Gava, destaca-se pela habilidade em transformar um desafio topográfico significativo em oportunidade projetual. Concluída em 2021, a escola de ensino infantil e fundamental demonstra como a arquitetura educacional pode articular funcionalidade de forma lúdica e técnica em um único gesto.
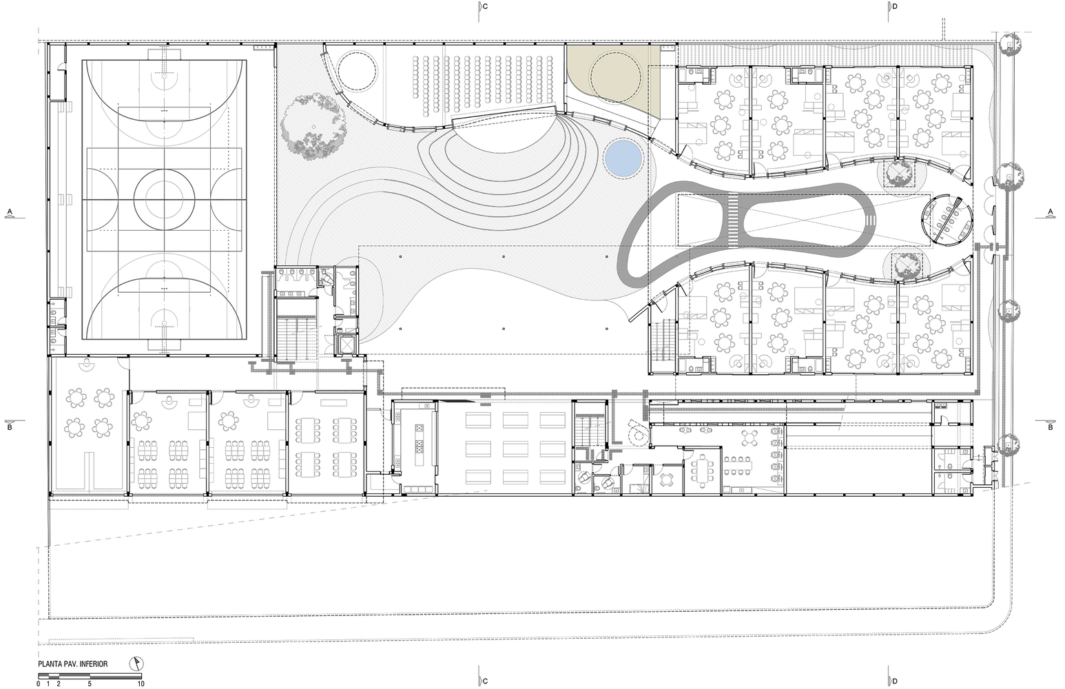
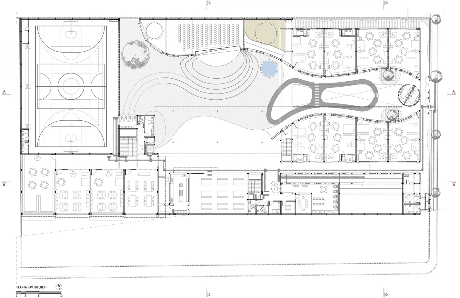
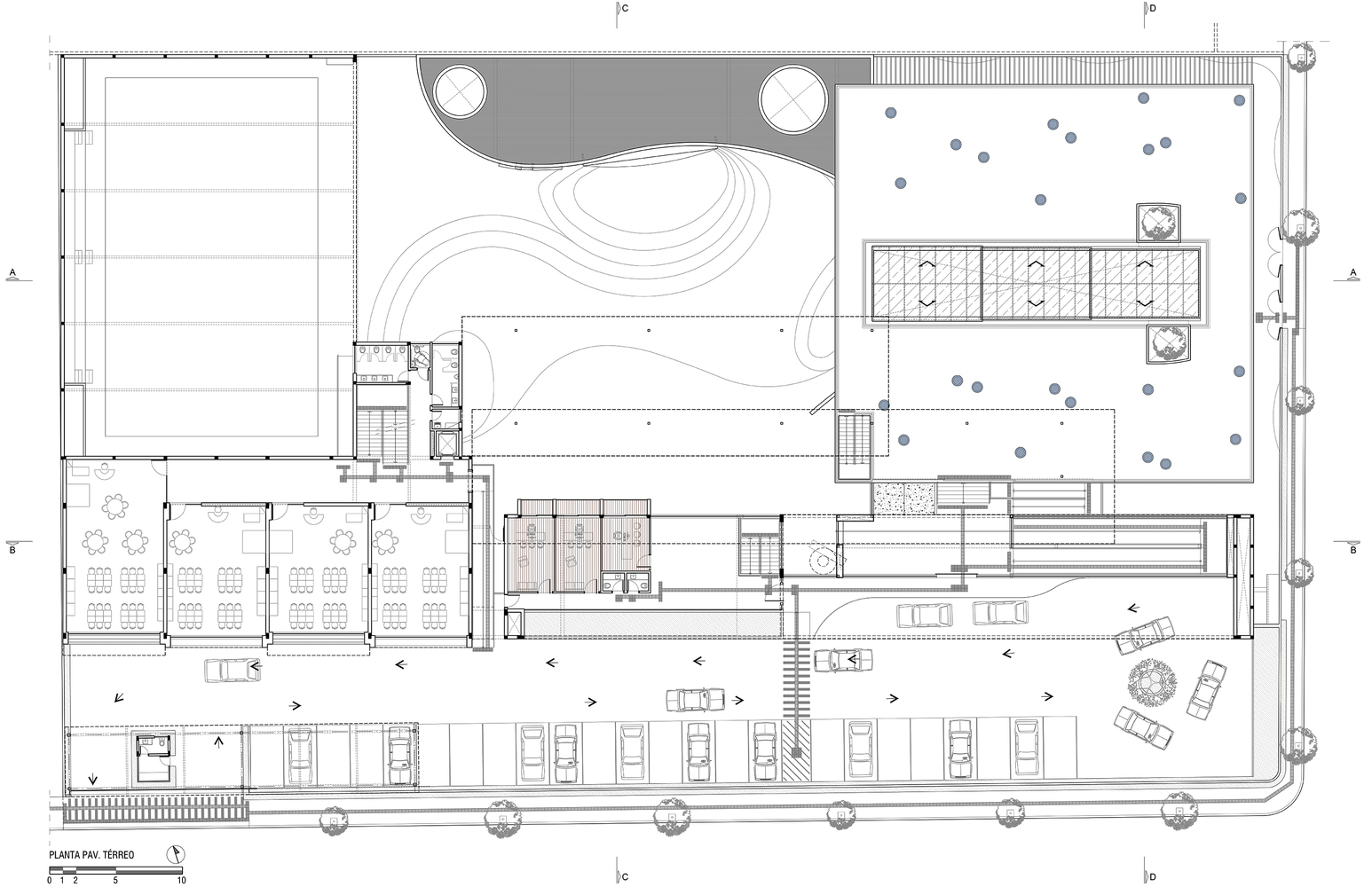
O principal mérito do projeto reside na solução térrea adotada para um terreno com quase quatro metros de desnível. Essa decisão revela sensibilidade às necessidades da educação infantil, eliminando barreiras verticais e proporcionando uma experiência espacial contínua e acessível. A execução combina concreto armado moldado in loco e estrutura metálica.
O percurso de acesso já anuncia o caráter lúdico do projeto. Após passar pelo estacionamento rotativo interno e pela recepção no nível superior da rua, os alunos descem por uma rampa acompanhada de um túnel amarelo. Esse elemento transforma a necessidade funcional de vencer o desnível em experiência sensorial, marcando o ritual diário de chegada à escola.
O coração da escola é um pátio central coberto por uma estrutura metálica branca, que conecta o refeitório às salas de aula. Essa grande cobertura não apenas protege o espaço de convívio das intempéries, mas define a identidade visual do conjunto, criando um ambiente generoso e luminoso para o encontro e a socialização entre as crianças.
O elemento arquitetônico mais marcante são os anéis de concreto coloridos que configuram as janelas das salas de aula e do anfiteatro. Com tamanhos variados, esses círculos rompem com a ortogonalidade geral do projeto e imprimem caráter divertido ao edifício. Implantados em paredes curvas que percorrem todo o pavimento inferior, conferem unidade compositiva e revelam uma arquitetura que dialoga diretamente com o universo infantil, sem infantilizar o espaço.
Todos os ambientes da escola voltam-se para um generoso gramado com anfiteatro, que funciona tanto para apresentações internas quanto externas. A plateia pode acomodar-se tanto nos assentos internos quanto no jardim externo, onde a própria grama escalonada em níveis serve de arquibancada. Essa solução dissolve os limites entre construído e paisagem, criando um espaço democrático e informal para atividades culturais e pedagógicas.
O pátio das salas de aula incorpora uma solução técnica inteligente: uma cobertura deslizante em estrutura metálica e vidro que se fecha em dias chuvosos e se abre quando o sol predomina. Essa flexibilidade permite que o espaço se adapte às condições climáticas, ampliando significativamente as possibilidades de uso do ambiente ao longo do ano.
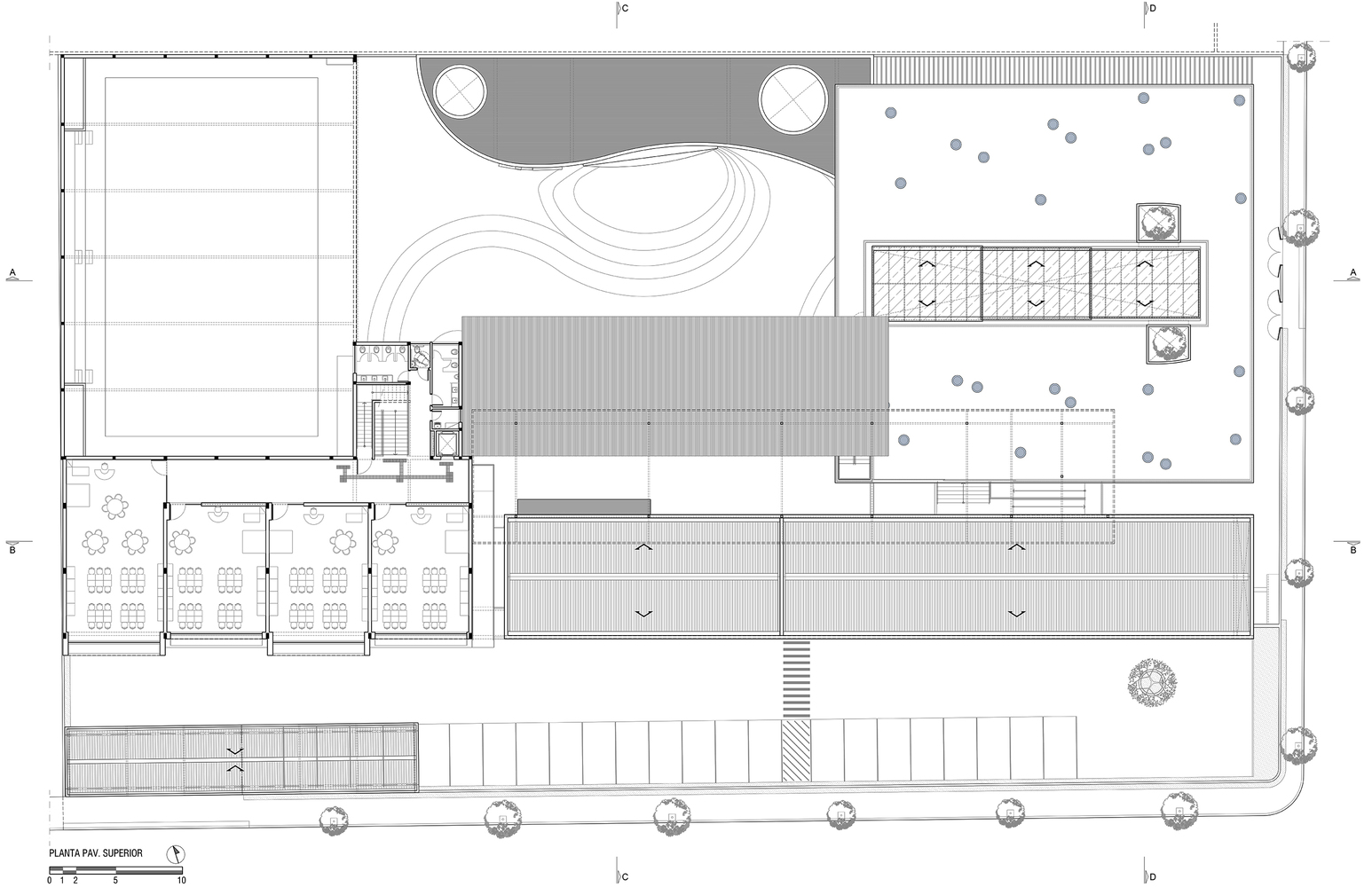
Sobre as salas de aula desenvolve-se um pátio para atividades diversas: pista de corrida, amarelinhas, rampa de escalada e outras brincadeiras ocupam esse nível superior. A solução mais engenhosa, porém, está nos tubos de concreto com vidro na face superior, que conduzem luz natural às salas inferiores e, simultaneamente, criam aberturas zenitais que permitem aos alunos observarem suas próprias salas de aula de cima para baixo, oferecendo literalmente uma nova perspectiva sobre seu espaço de aprendizagem.
A Maple Bear demonstra que arquitetura educacional de qualidade transcende o cumprimento de programa funcional. Trata-se de criar ambientes que estimulem a curiosidade, valorizem a experiência espacial e compreendam que cada elemento construtivo pode contribuir ativamente para o processo pedagógico. As janelas circulares coloridas não são apenas aberturas, mas convites à observação; o túnel amarelo não é apenas circulação, mas ritual de passagem; os tubos de luz não são apenas iluminação zenital, mas dispositivos de percepção espacial.
O projeto materializa a ideia de que o espaço escolar é, em si mesmo, um agente educador. Ao vencer o desnível topográfico sem recorrer a pavimentos múltiplos convencionais, ao criar pontos de vista através dos tubos de luz, ao proporcionar flexibilidade climática e ao integrar arquibancadas naturais no paisagismo, o projeto oferece aos alunos experiências espaciais e diversificadas que complementam e potencializam o processo de aprendizagem.
Categoria: Arquitetônico Educacional
Localização: Marília
Ano: 2021
Área: 5.020m²
Arquiteto: Fagner Mendes Gava
Créditos: Celso Melani
